山東凈化工程公司說如何才能更加高效的施工
時間:2019-05-01 07:53:17
現如今人們在生活中的各方面都講究效率二字,如何提高效率已經后才能為了人們十分關注的話題。山東凈化工程公司結合長期的工程建設經驗,感覺到高效施工是必須的。那么怎樣更高效的進行凈化工程建設呢?下面我們一起來看下。
1、首先對接是非常重要的
客戶需要將自己的目的,想要達到的效果,生產產品的一些要求全部給山東凈化工程設計施工廠家了解清楚,這樣的話知道客戶需求,山東凈化工程設計施工廠家才好針對性的做更好的設計。
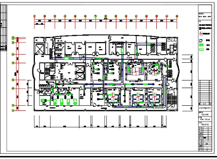
2、圖紙的準確性以及完善性
施工圖可以是客戶自己繪制也可以讓山東凈化工程設計施工廠家幫助完成,但是這兩者都有一個前提,就是山東凈化工程設計施工圖紙一定要正確完善,沒有遺漏,這樣的話才能為后面一鼓作氣的高效施工鋪一個好的基礎。

3、高尖端的技術支持?
想要高效,最基礎的自然就得要技術過關,只有山東凈化工程設計施工上有很棒的技術支持,才是擁有高效施工速度的基礎。
山東凈化工程怎樣更高效施工?看完以上的介紹相信大家都有所了解。在山東凈化工程建設的時候,我們要利用好以上的方法,從設計到施工,注重效率和質量,在高效的前提下進行高質量的工程建設!

